
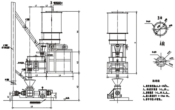
四层预给料机能保证煤粉喂料的连续、稳定、均匀,杜绝堵料和涌料现象。
高精度环状天平作为计量装置,计量准确、运行可靠,气流、落料冲击力等外界影响因素不会引进秤体零点漂移。
采用我公司专利型FK螺旋输送泵,其变距螺旋形成的动态料封与出料止回阀构成锁风双保险,可以在较高的送料气体压力下有效送料并可靠锁风,防止气体窜入计量秤,以保证转子秤系统的喂料计量精度。
一流的控制系统:汇聚我公司计量控制经验,与西门子合作开发的转子秤软硬件控制系统先进可靠,专家级前馈控制技术,调节灵敏、反应迅速、功能齐全、使用方便。
高档的进口驱动配置:转子秤和喂料机选用ABB电机和德国弗兰德减速机,运转平稳无振动,确保转子秤的计量精度和长期稳定可靠运行。
结构紧凑、密封性好,可方便地安装在煤粉仓下。

江苏摩森威装备科技有限公司
销售热线:180-6113-3915
电子邮箱:vip@mosenwei.com
总部地址:徐州高新技术产业开发区漓江路南国家安全科技产业园A16
扫一扫 关注我们